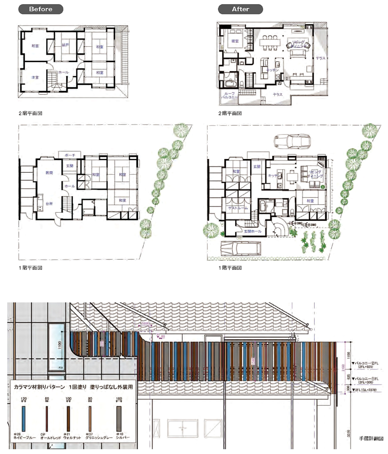
東京都町田市、2世帯住宅の改修プロジェクト。
母親がひとりで暮らしていた大きな住宅を、長男夫婦の出産を契機に一緒に暮らしていく器に再編する依頼を受けた。比較的大きな敷地にゆったりと配置された2階建ての住宅。敷地の余剰部分を活用して2階への個別動線を増築。既存の階段は廃止し、2世帯ながら世帯の独立性を確保した。2世帯の程良い距離感を担保すべくハブとなる客間を設け、双方からの室内アクセスができる形とした。また既存建物の佇まいと増築棟意匠との整合性を図るべく、テラスより増築棟屋上まで通じる桟敷状のテラスを外壁伝いに設けた。両者をラッピングし、とり合い部にはうだつ状の緑化壁を施し新旧の衝突をみどりが融和する計画としている。
| 用途 | 住宅(リノベーション) |
| 竣工 | 2015.11 |
| 敷地面積 | 284.92㎡ |
| 建築面積 | 97.60㎡ |
| 延床面積 | 172.25㎡ |
| 規模 | 地上2階 |















